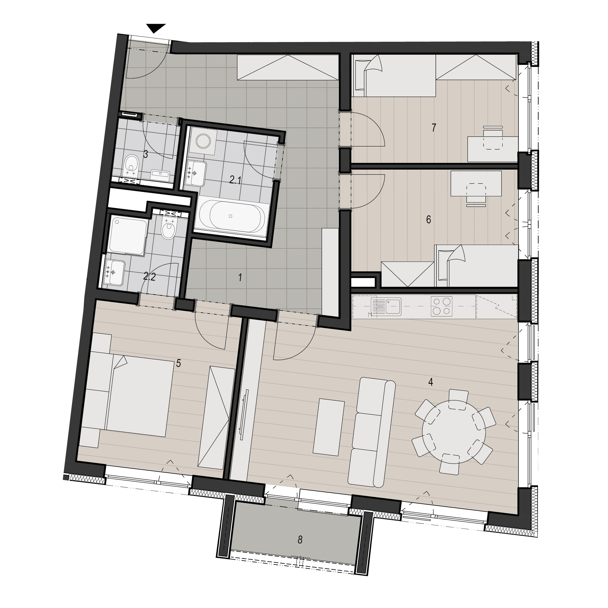
Název jednotky:
4.09
Využití:
byt
Podlaží:
4. np
Stav:
volný
Dispozice:
4+kk
Prodejní plocha bytu:
102,00 m2
Zahrada + Terasa:
3,60 m2
Cena vč. DPH*:
10 103 554 Kč

